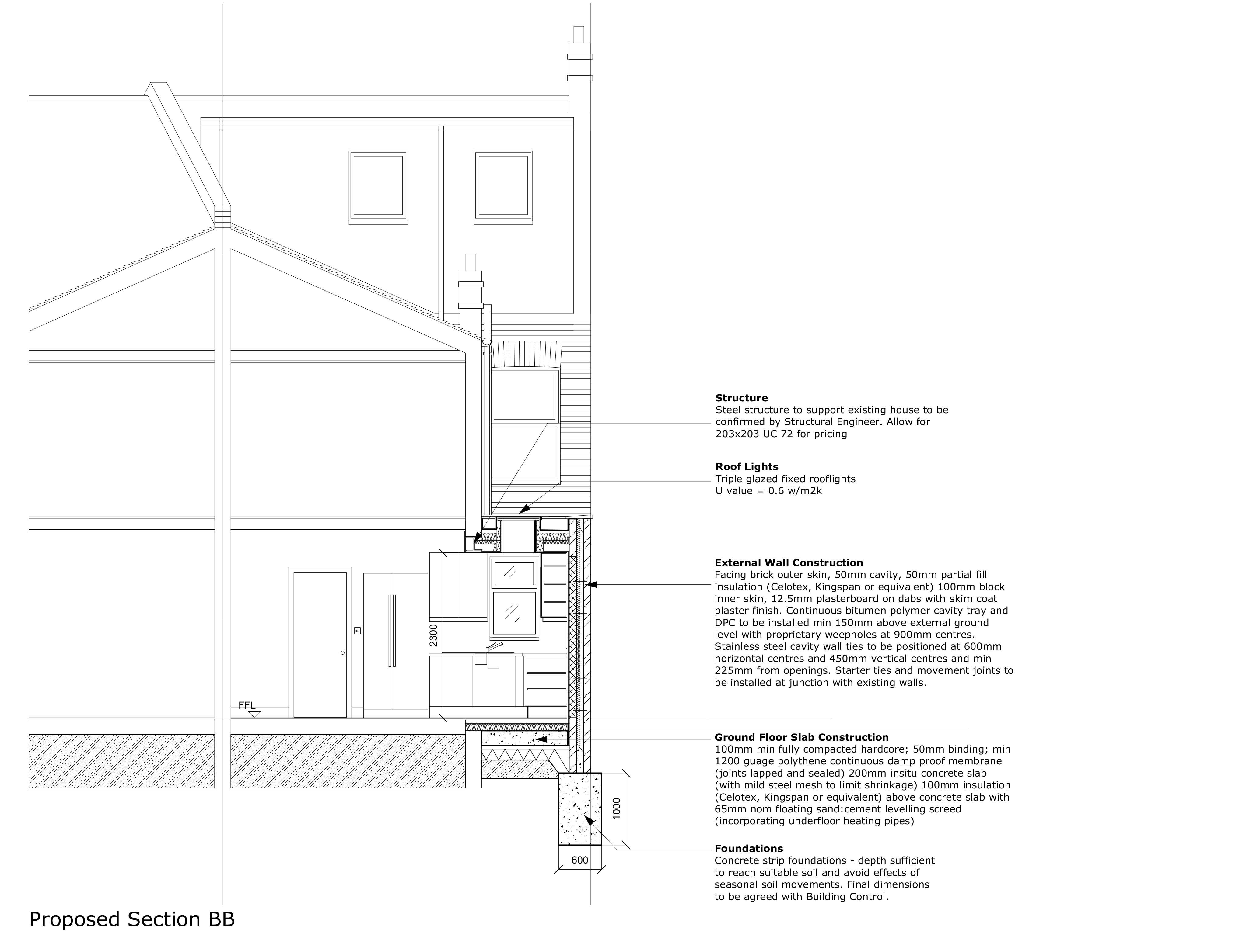
Side & Rear Extension, London E11
Side & rear extension to Victorian property, to provide a larger kitchen/dining space and new wc.
Under construction
Side & rear extension to Victorian property, to provide a larger kitchen/dining space and new wc.
Under construction
Leave a comment