Maggie Tanner Architects

  • Home
  • Projects
  • Process
  • About
  • Contact

Sketch ideas stage

This is about design consultation and briefing – what are you looking to achieve?

 We will discuss surveying the existing property, before producing outline layouts and sketches.

At this stage we will also establish the process required for planning application, building control and any party-wall agreements.

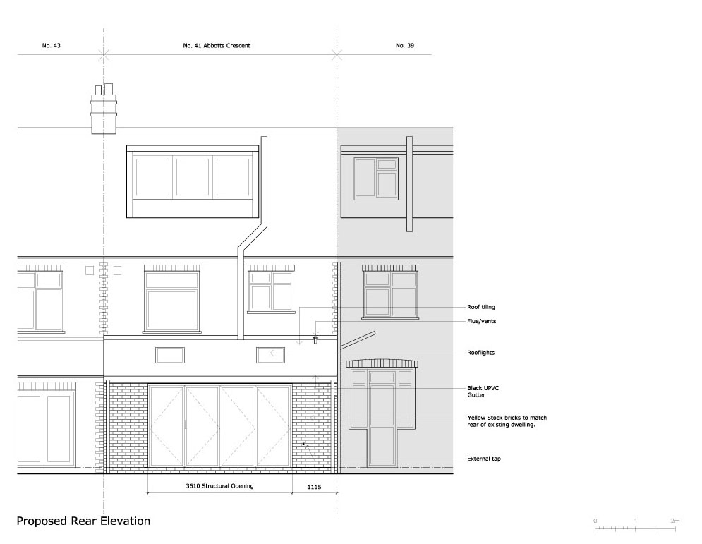
 Rear View

Design development

Designs are now developed and drawings produced to allow for submission for Planning Permission and/or obtaining initial cost estimates.

 Planning

Building Control Submission

Develop detailed drawings to allow submission for Full Plans Building Control Application.

 Prop Plan

Production Information

Detailed technical drawings and specification for construction.

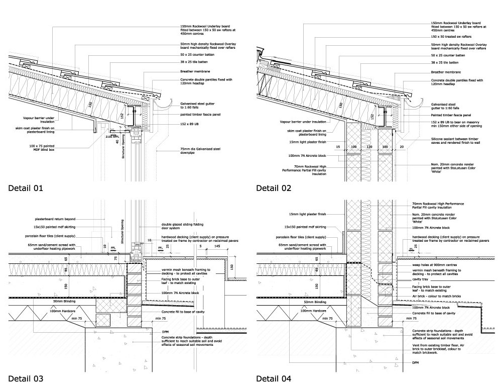
Section Details

Like Loading...
Blog at WordPress.com.
  • Subscribe Subscribed
    • Maggie Tanner Architects
    • Already have a WordPress.com account? Log in now.
    • Maggie Tanner Architects
    • Subscribe Subscribed
    • Sign up
    • Log in
    • Copy shortlink
    • Report this content
    • View post in Reader
    • Manage subscriptions
    • Collapse this bar
 

Loading Comments...
 

    %d