Rear Extension & Loft Conversion, London E4
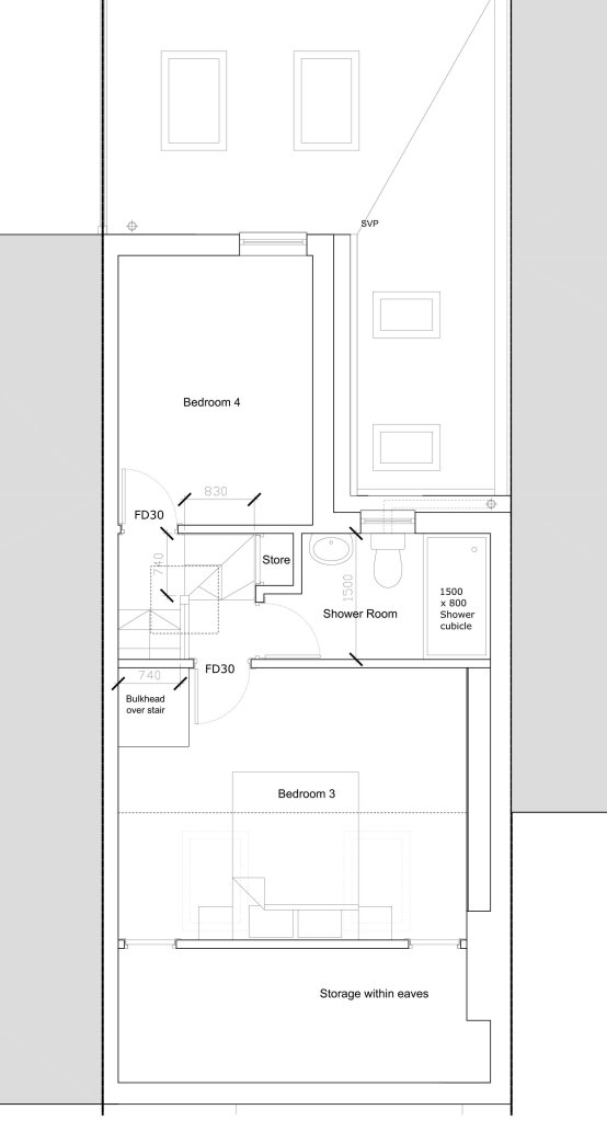
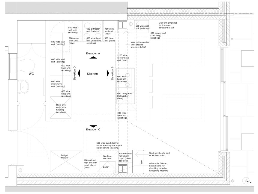
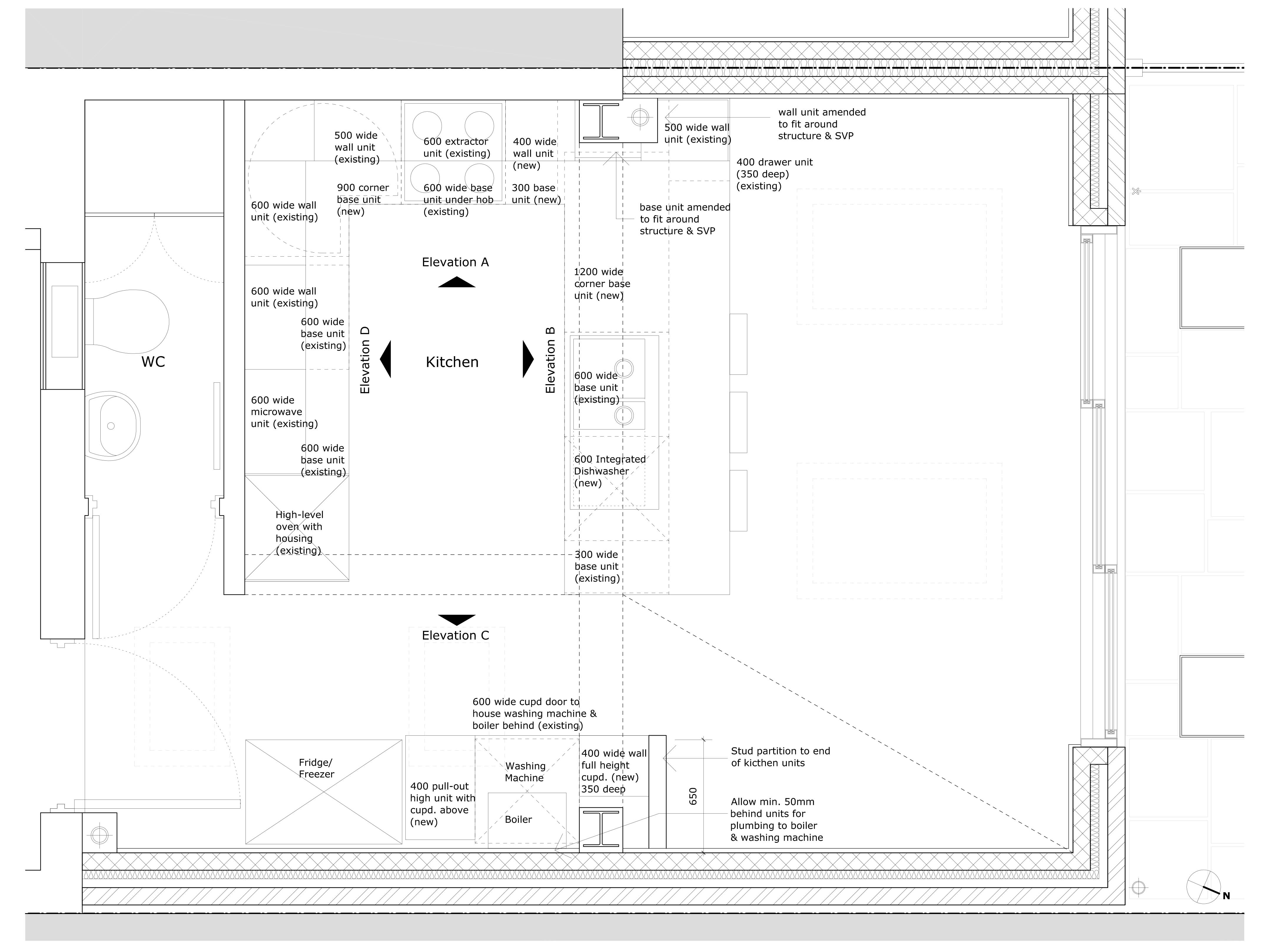
Single storey rear extension, to incorporate a new kitchen & wc, together with a 2-bedroom loft conversion.
Under Construction

Single storey rear extension, to incorporate a new kitchen & wc, together with a 2-bedroom loft conversion.
Under Construction

Leave a comment